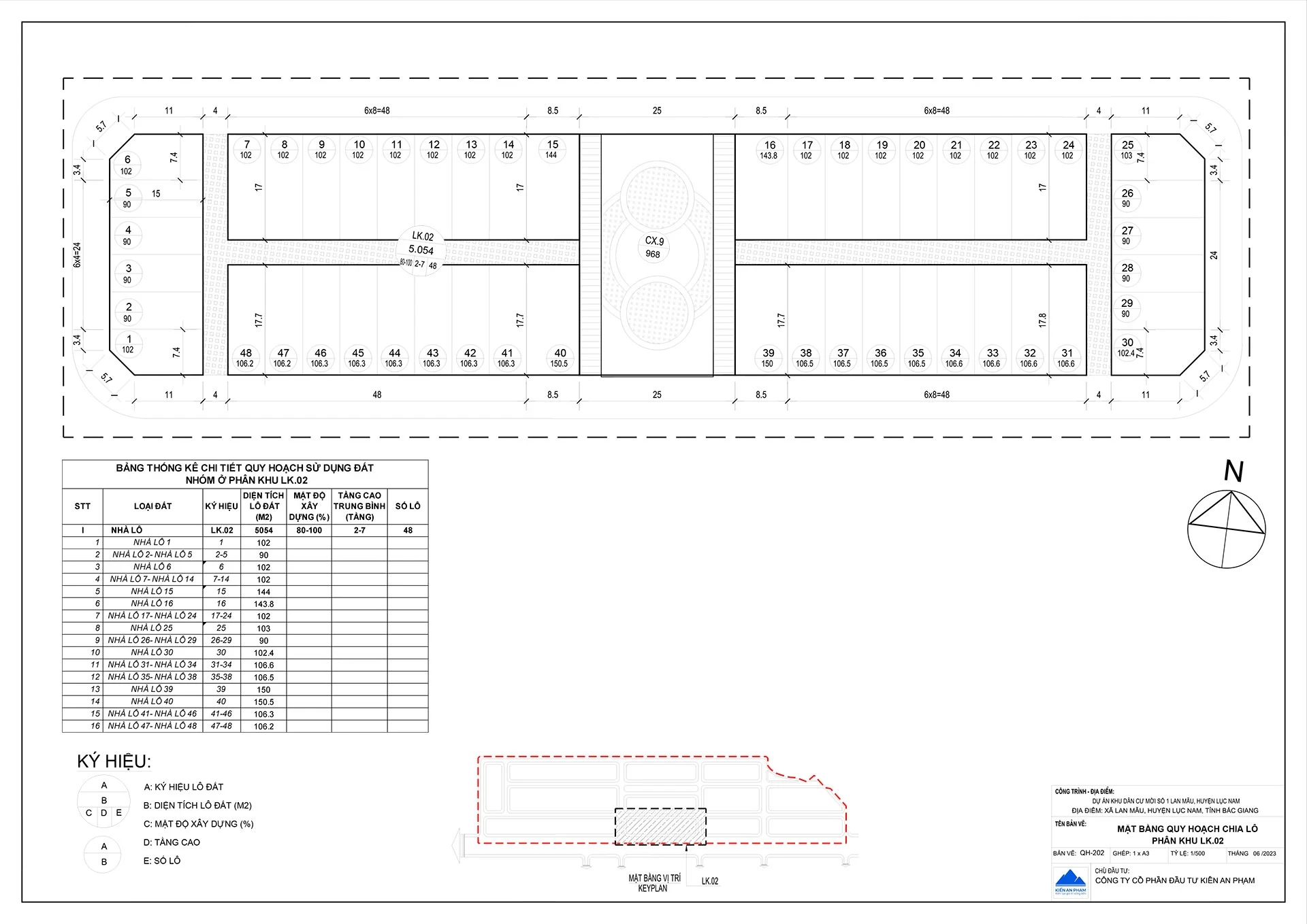
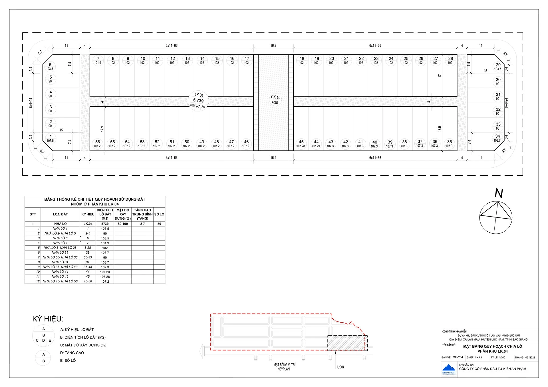
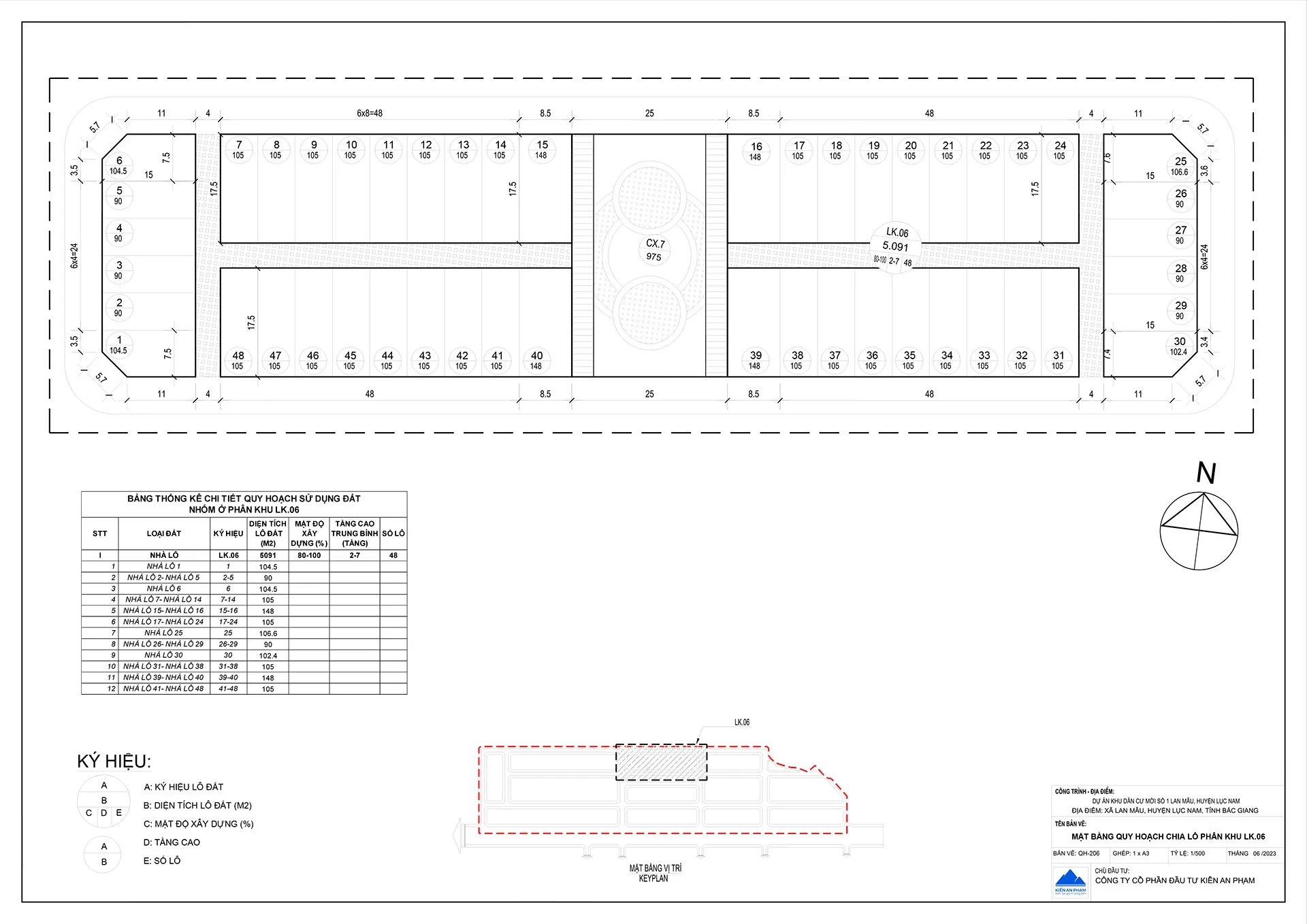
Dãy shophouse tiếp giáp đường tỉnh 293 có mặt cắt đường được thiết kế rộng gần 60m, đa dạng các loại diện tích mặt tiền từ 6m, vỉa hè 7m vô cùng thuận lợi để kinh doanh và sinh lời.

Ngoài ra hệ thống đường nội khu cũng vô cùng hiện đại và thông thoáng. Với độ rộng đường lên đến 24m. Trong đó, 100% vỉa hè là 6m và lòng đường nơi nhỏ nhất là 8m để khách hàng cũng như cư dân có thể thoải mái mua sắm và lưu thông.

Đặc biệt cùng với đó là hệ thống hào kĩ thuật, chống cháy lan, phòng cháy chữa cháy và thoát hiểm được thiết kế phía sau các dãy nhà với lưu không lên đến 4m vượt trội so với quy chuẩn của nhà nước về đảm bảo an toàn cho cư dân.

Với hệ thống hạ tầng kĩ thuật và xã hội đồng bộ. Dự án được chủ đầu tư ưu ái đầu tư xây dựng những không gian cây xanh tươi mát kết hợp cùng hệ thống sân chơi đường dạo khang trang, hệ thống đèn chiếu sáng và trang trí hiện đại tạo nên một không gian sống vô cùng sinh thái và tiện nghi.

Dự án còn được đầu tư xây dựng với đầy đủ các tiện ích như nhà hàng, trung tâm mua sắm, trung tâm ý tế, ngân hàng, bưu điện, nhà văn hóa đặc biệt là trường học liên cấp nội khu… tạo ra một không gian sống vô cùng thư tháitiện nghi nhằm phục vụ đầy đủ nhu cầu của cư dân sinh sống ở nơi đây.